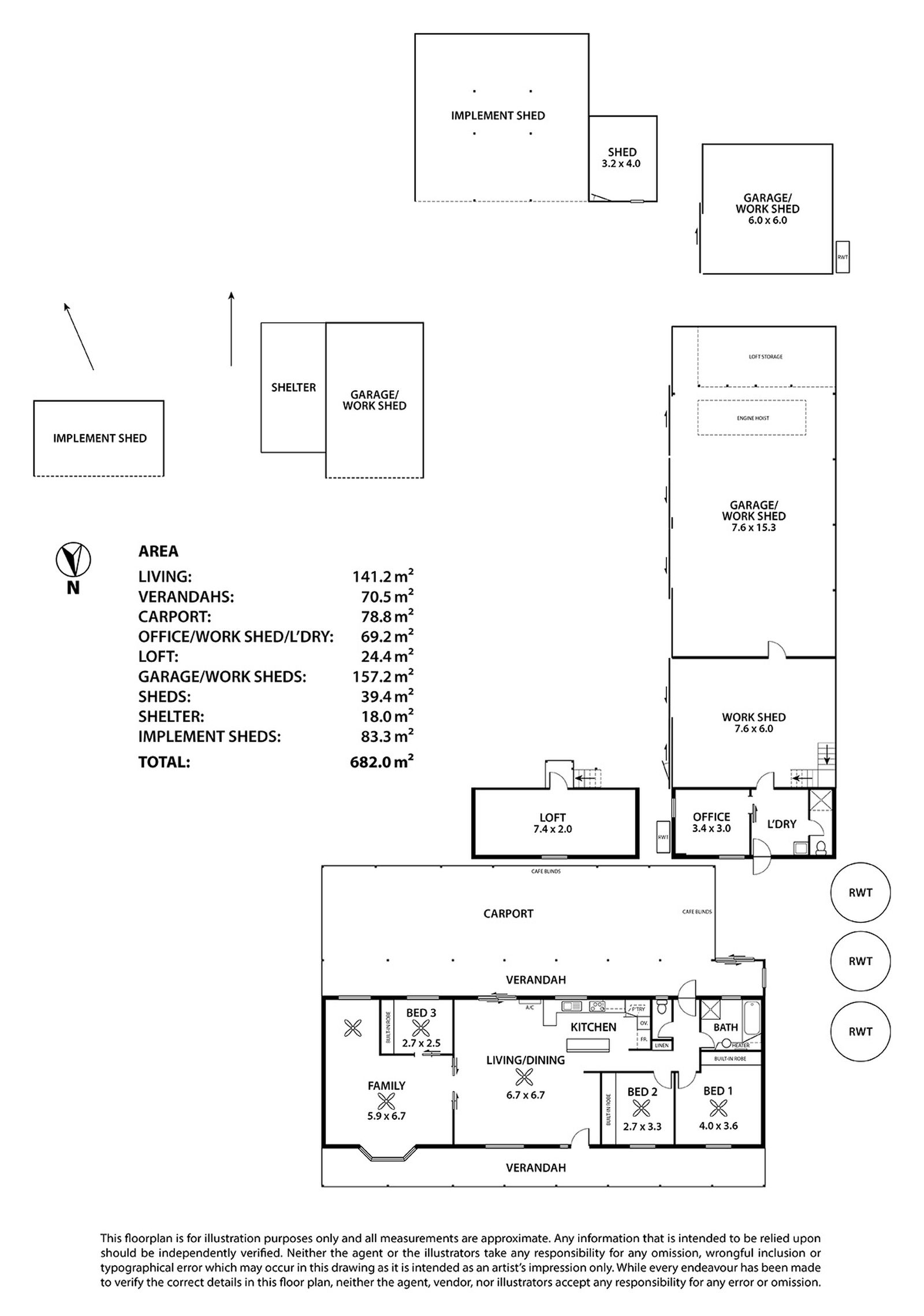
House with Huge Shedding!
- 4 Bedrooms
- 2 Bathrooms
- 20 Car spaces
- 6264 sq metres
Description
Nestled in the charming town of MENINGIE, this lovely 4-bedroom, 1-bathroom residence offers the ultimate lakeside lifestyle.
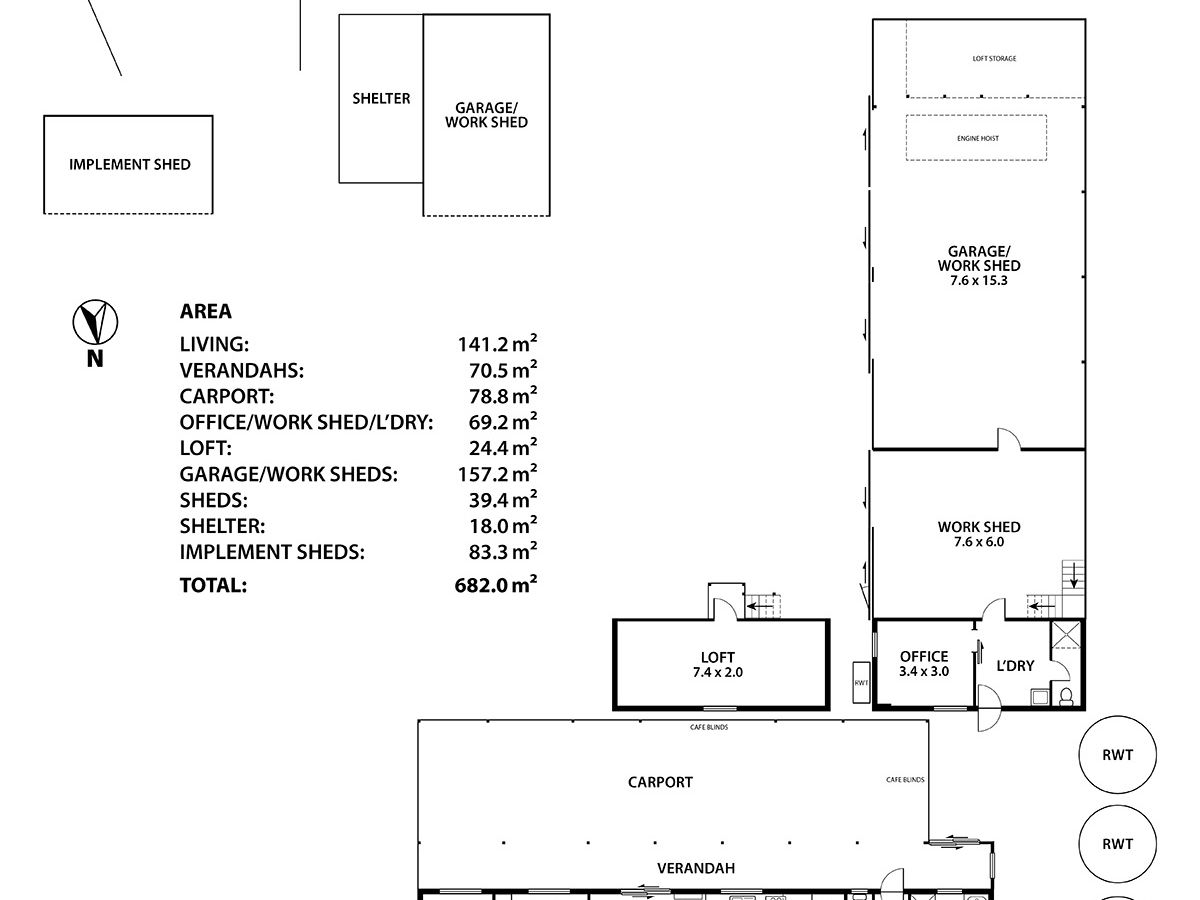
Boasting 8 garage spaces plus Hoist, 2 carport spaces, and 10 open car spaces, a self contained office space with loads of storage and a bathroom can all be found in the HUGE shed, I believe this property is a car enthusiast's dream!!
With easy access to local amenities and water activities, this property offers a unique opportunity to experience country living in a convenient setting.
(This lovely parcel of land also Identifies as possible subdivision subject to council approvals)
Some of the Features are as follows:
* 4 Bedrooms
* Open plan living
* Ceiling Fans
* Split system
* Large entertaining area
* Rain water storage
* Loads of shedding
* Hoist
* Large contained office with numerous rooms
If your looking to work from home with your own workshop, well this could tick all your boxes. Don't miss out on making this Outstanding property your own.
Contact us today to arrange a private inspection of this property.
Council Rates approximately $2,124.00 Per Year
While every endeavor has been made to verify the correct details in this publication, particulars given are for general information only and do not constitute any representation on the part of either the Agent nor the Vendor, and neither accepts liability for any error or omission. RLA 231959


