Family home with shedding
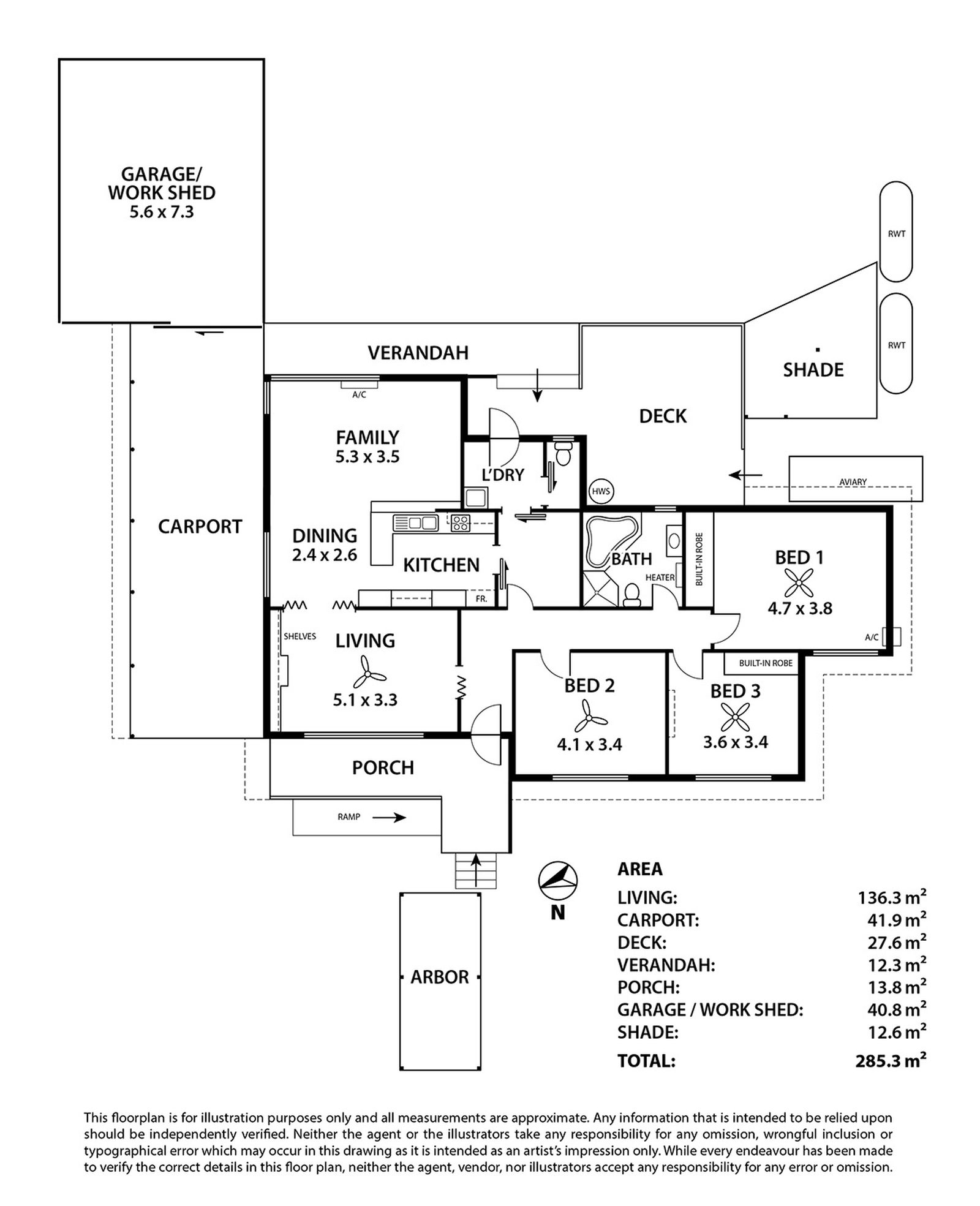
- 3 Bedrooms
- 1 Bathrooms
- 5 Car spaces
Description
Potential packed 3 X Bedroom Family home with Shedding!
Rarely do properties in this price range arise with all of these features.
Conveniently located close to shops, Kindy and School.
This home is low maintenance and ready for the new owners to put their finishing touches on it.
Some of the features areas follows,
* 3 x Generous sized bedrooms, 2 with built ins
* 2 x Living areas
* Large bathroom with Spa
* 2 x Toilets
* Fully enclosed front and rear yard.
* Decked entertainment area
* 10 Kw Solar System with Battery
* Double Garage
* Carport
Don't miss this opportunity to own this property. Book a viewing today and experience the charm of this lovely family home for yourself.
While every endeavor has been made to verify the correct details in this publication, particulars given are for general information only and do not constitute any representation on the part of either the Agent nor the Vendor, and neither accepts liability for any error or omission. RLA 231959


